- SALES
- RENTALS
- INFORMATIONS
-

- MAP
- CONTACT
43, Rue Principale
L-8376 Kahler
Tél.: 26 37 51 61
Fax: 26 37 51 62
GSM: 691 18 43 13
E-mail: dondimmo@pt.lu

QUICK SEARCH |
|
|
|

|
|
|
|
|
Features :
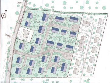
PROPERTY TYPE : BUILDING LAND
CITY : KAHLER
REGION : OUEST
AVAIBILITY :
à CONVENIR
NEW CONSTRUCTION : Yes
Create PDF
|
|
Description of the property :
NOUVEAU LOTISSEMENT, TERRAINS ENTRE 5 - 8 ares, avec contrat de construction.
Features :
Other :
Property furnished
New construction
|
|
|
|